26892 Dörpen, Wohnung zur Miete
Kontaktdaten
-
NameGiulia Horn
-
FirmaHorn Bauunternehmen GmbH & Co. KG
-
AdresseHauptstraße 85
26842 Ostrhauderfehn -
E-Mail Direkt
-
Tel. Durchwahl
Objektdaten
-
Objekt IDWSD1
-
ObjekttypWohnung
-
Adresse26892 Dörpen
-
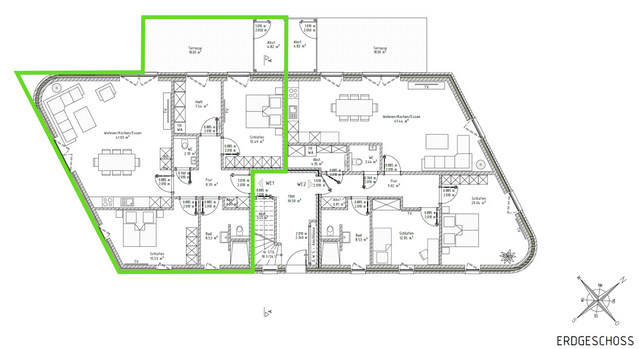
Wohnfläche ca.109 m²
-
Zimmer3
-
Baujahr2024
-
Balkon/TerrasseGarten, Terrasse
-
BödenFliesenboden
-
FensterKunststofffenster
-
HeizungsartLuft-/Wasser-Wärmepumpe
-
SanitärBad mit Dusche, Bad mit Fenster, Gäste-WC
-
Sonstiges/Wohnenbarrierefrei, Gartenanteil, seniorengerechtes Wohnen
-
StellplatzStellplatz
-
WohnungslageErdgeschoss
-
ZustandNeubau
-
Kaltmiete990,00 EUR
-
Nebenkosten240,00 EUR
Ausstattung / Merkmale
- ✓ barrierefrei
- ✓ Garten
- ✓ Gartenanteil
- ✓ Gäste WC
- ✓ Neubau
- ✓ seniorengerechtes Wohnen
- ✓ Stellplatz
- ✓ Terrasse
Objektbeschreibung
Sonstiges
Objekt
Wohnen Sie ruhig, dennoch zentral!
Auf einem großzügigen Grundstück in Dörpen sind insgesamt drei Mehrfamilienhäuser mit jeweils vier Wohneinheiten entstanden. Die Fertigstellung bzw. der Bezug der Wohnungen erfolgte im Jahr 2024.
Im Erdgeschoss sowie im Dachgeschoss befinden sich jeweils zwei Wohnungen, welche durch einen gemeinschaftlichen Hausflur zu erreichen sind. Für jede Wohnung ist ein Stellplatz sowie ein Geräteraum vorgesehen.
Die Wohnungen sind in hochwertiger Bauweise mit bestem Schallschutz und optimaler Wärmedämmung errichtet. In Kombination mit der Luft-Wärme-Pumpe wird Ihnen ein niedriger Energieverbrauch gesichert. Helle, lichtdurchflutete Räume mit großen fußbodentiefen Fenstern verleihen den Wohnräumen eine besonders behagliche Atmosphäre. Für maximalen Komfort sorgt die moderne Fußbodenheizung mit Raumthermostaten in allen Räumen. Eine Sanitärausstattung mit namenhaften Sanitärobjekten und einer ebenerdig gefliesten Dusche runden die Wohnungen ab. Jede Wohnung wird bezugsfertig fertiggestellt und mit exklusiven Materialien wie hochwertigen Fliesen und weißen Innentüren ausgestattet.
Durch die Barrierefreiheit werden sowohl junge Familien als auch Senioren eingeladen.
Lage
Dieses Mehrfamilienhaus punktet neben seiner Architektur, vor allem mit seiner Lage. Sie leben in grüner Atmosphäre, erreichen das Zentrum von Dörpen jedoch in lediglich 500m.
Ausstattung
* Modernste Architektur
* Barrierefreies Wohnen mit gehobener Ausstattung
* Luft-Wasser-Wärmepumpe
* Fußbodenheizung mit Raumthermostaten in jedem Wohnraum
* Komplette Malerarbeiten und hochwertige Fliesen
* Deckenhoch verfliestes Bad und Gäste-WC
* Namenhafte Sanitärausstattung
* Bodentiefe Fensterelemente mit 3-fach-Verglasung
* Elektrische Rollläden in jedem Wohnraum
* LED Spots in Flur und Bad
* Ausgepflasterte Terrasse
* Stellplatz und Geräteraum
* Fertiggestellte Außenanlage
Raumaufteilung
Flur, Schlafzimmer, Gästezimmer, Wohnen/Kochen/Essen, Bad, Gäste-WC, HWR
Sonstiges
Eine Küche wird nicht eingebaut.
Haustierhaltung ist nicht gestattet.
Lage
Die dargestellte Position der Immobilie ist nur eine ungefähre Angabe.






